Kapili at Hoopili
HOOPILI-KAPILI
- Unit #416
- $693,475
- 1,266 sqft
- 117.7 m²
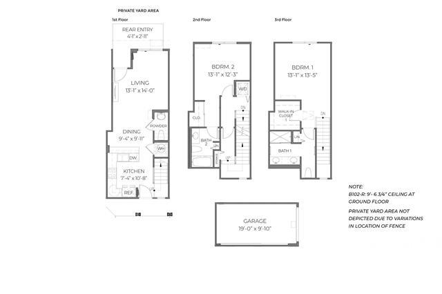
This single level 2 bedroom, 2 bathroom condominium with 971 square feet (net) of living area allows for comfortable living. This end unit offers an open concept living room and kitchen. From the living room, step out to the covered balcony to relax and take in the fresh air. The main bedroom has a walk-in closet and ensuite bathroom with a double vanity and shower. The second bedroom has a closet with mirrored sliding doors and the second bathroom features a full-size combination shower and bathtub. Whole house split air conditioning and modern appliances including a range/oven, micro-hood, dishwasher, refrigerator, and washer/dryer allow for ease of living.
REMARKS
- MLS No
- 202528486
- Name
- Kapili at Hoopili
- Apartment Number
- #416
- Price
- $693,475 USD
- Land Tenure
- FS - Fee Simple
- Maintenance Fee
- $626.61 USD
| Sqft | m² | Tsubo | |
|---|---|---|---|
| Exclusive area (indoor) | 1,266 | 117.7 | 35.7 |
| Exclusive area (Lanai) | 0 | 0 | 0 |
| Exclusive area (total) | 1,266 | 117.7 | 35.7 |
| Unit price (per room area) | 547.77 | 922,080 | 3,040,023 |
BASIC INFORMATION
- Neighborhood
- HOOPILI-KAPILI
- Zip Code
- 96707
- Property Address
- 91-4099 Hikuono HOOPILI-KAPILI
- TMK (Tax Map Key)
- 1-9-1-18-28-70
- Bedrooms
- 2
- Bathrooms
- 2/1
- Year Built
- 2025
- Property Condition
- Excellent
- Parking
- Garage,Open - 1
- View
- None
- Inclusions
- AC Split,Blinds,Dishwasher,Disposal,Dryer,Home Warranty,Lawn Sprinkler,Microwave Hood,Range/Oven,Refrigerator,Smoke Detector,Washer,Water Heater
- Property Style
- Townhouse
- Rooms and Descriptions
- Multi Level,Yard
- Amenities
- Community Association Pool,Dog Park,Fire Sprinkler,Playground,Private Yard,Wall/Fence
LOCATION
Based on the information from the Multiple Listing Service of HiCentral MLS, Ltd., listings last updated on Wednesday, Dec, 31, 2025, 04:00 a.m. JST.Information is deemed reliable but not guaranteed.Copyright © 2019 by Hicentrral MLS, Ltd.**Listing courtesy of D R Horton Hawaii, LLC. - (808) 521-5661 -**
Some of the active listings appearing on this site may be listed by other REALTORS.
If you are interested in those active listings, our company may represent you as the buyer's agent.
If the active listing you are interested in is our company's active listing,you may speak to one of our agents regarding your options for representation.
Hawaii Featured Area
Introducing the hottest areas in Hawaii right now
Hawaii Popular Condominiums
Introducing popular condominiums in Hawaii























