98-1146 Malualua PEARLRIDGE
PEARLRIDGE
- $1,350,000
- 1,374 sqft
- 127.8 m²
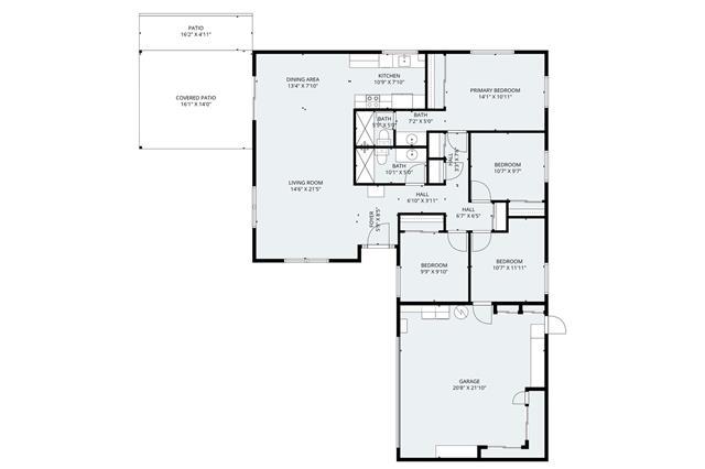
Pearl Ridge Estates - tucked away on this quiet street - a single-level BEAUTIFULLY MAINTAINED single-family home with 4 bedrooms and 2 bathrooms. This huge lot, slightly over 10,000 sq ft, of fee simple land is perfect just as it is, with lava rock walls and custom landscaping. This home has a brand-new light composition Roof installed in September 2025. The blue/grey exterior with white trim was freshly painted in October 2025. Walk into the spacious home, and you are greeted with an entry and a freshly painted interior. An open floor plan of 1374 sq. ft. with gorgeous Vinyl Plank Floors, Slider windows, and a Recently RENOVATED Kitchen (2024) is perfect to move right in! The kitchen boasts stainless steel appliances and Golden Brown Cabinetry. No stairs to climb. Step out from this living area to a 224 sq ft covered lanai with futura stone that feels very private as you look out to ocean views. Easy entertaining from this stunning setting. Beautiful trade winds Flow through this home. 462 sq ft Large 2-car Garage with workshop/Storage. The backyard has moss rock walls and is completely fenced in back for privacy. Green lawn in front and back. NO ASSOCIATION AND NO FEES.
REMARKS
- MLS No
- 202516501
- Price
- $1,350,000 USD
- Land Tenure
- FS - Fee Simple
| Sqft | m² | Tsubo | |
|---|---|---|---|
| Exclusive area (indoor) | 1,374 | 127.8 | 38.7 |
| Exclusive area (Lanai) | 0 | 0 | 0 |
| Exclusive area (total) | 1,598 | 148.6 | 45 |
| Unit price (per room area) | 982.53 | 1,627,923 | 5,375,930 |
BASIC INFORMATION
- Neighborhood
- PEARLRIDGE
- Zip Code
- 96701
- Property Address
- 98-1146 Malualua PEARLRIDGE
- TMK (Tax Map Key)
- 1-9-8-43-13-0
- Bedrooms
- 4
- Bathrooms
- 2/0
- Year Built
- 1972
- Property Condition
- Excellent
- Parking
- 3 Car+,Driveway,Garage,Street
- View
- City,Garden,Ocean,Sunset
- Inclusions
- Auto Garage Door Opener,Blinds,Ceiling Fan,Dishwasher,Disposal,Dryer,Microwave Hood,Range/Oven,Refrigerator,Smoke Detector,Water Heater
- Property Style
- Detach Single Family
- Rooms and Descriptions
- Amenities
- Bedroom on 1st Floor,Entry,Full Bath on 1st Floor,Landscaped,Patio/Deck,Storage,Wall/Fence,Workshop
LOCATION
Based on the information from the Multiple Listing Service of HiCentral MLS, Ltd., listings last updated on Thursday, Nov, 06, 2025, 04:00 a.m. JST.Information is deemed reliable but not guaranteed.Copyright © 2019 by Hicentrral MLS, Ltd.**Listing courtesy of Horita Realty LLC. - (808) 487-1561 -**
Some of the active listings appearing on this site may be listed by other REALTORS.
If you are interested in those active listings, our company may represent you as the buyer's agent.
If the active listing you are interested in is our company's active listing,you may speak to one of our agents regarding your options for representation.
Hawaii Featured Area
Introducing the hottest areas in Hawaii right now
Hawaii Popular Condominiums
Introducing popular condominiums in Hawaii
























